方案展示
設計說明
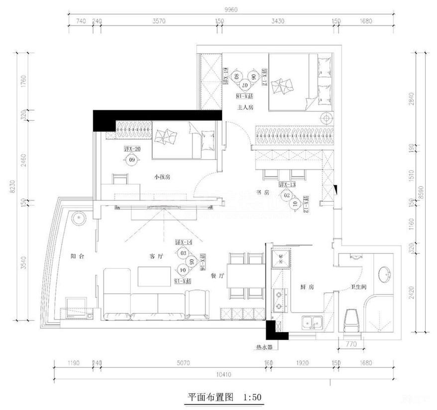
本案屬二次翻新,設計風格上采用歐式偏現代,色彩以米色、銀色、白色為主,墻漆局部純色,局部銀箔質地,家具的樣式曲線中帶點鋼直。設計摒棄了過去歐式過多的繁瑣門頭雕花修飾以及羅馬柱的裝飾,整體設計兼具歐式主義的優美造型與簡約現代主義的功能配備,不僅奢華大氣、簡潔明快,更溫暖舒適。下面我們就一起來感受下高品質的豪宅生活吧! 64方的三居室,書房采用開放式。書柜與鞋柜的結合,書柜下柜與儲物柜的結合,功能上解決了三室中缺少儲物間的尷尬,及入戶玄關原本的局促感,功能上區分明確,空間與空間若有似無的聯系,讓整個空間開闊,彰顯大氣。 在細節的處理上,餐廳區域利用灰玻的通透性,解決餐廳區墻面的壓迫感,動感十足。電視背景采用雪花白大理石線和馬賽克的鋪貼,與天花銀箔和沙發墻的線條相呼應。 整個客廳的設計非常注重顏色的搭配和配飾軟硬的組合,深色餐廳背景被淺色吊頂中和,深色家具被淺色墻壁和地板中和,水晶燈柔和的燈光漫不經心的反射到各個角落,營造出家庭式的溫馨氛圍.
[展開]-
蔡玉華的其它設計案例
-
歐式風格的其它設計案例
裝修預約
- 您的姓名: *
- 聯系方式: *
- 樓盤名稱:
- 建筑面積: m2
- 裝修設想:
- 取消
關注我們
分享到
微信

立即預約
在線咨詢
在線客服
公安部備案號 44010602004978號