方案展示
設計說明
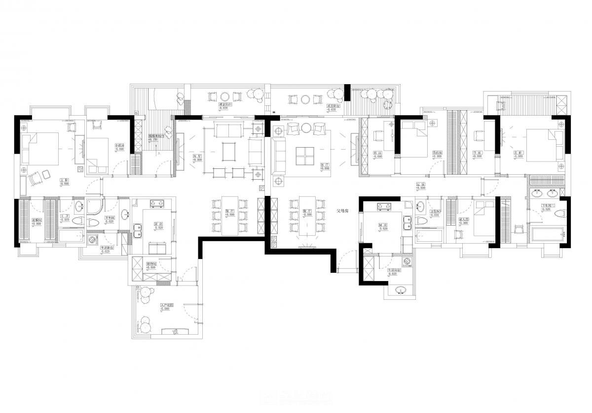
本案為溫州企業家量身打造同層并排雙套居室,一套承載業主夫婦的日常起居,以新古典風格鋪陳歲月質感;一套贈予待嫁女兒作為婚房,用輕法式風格勾勒浪漫憧憬。雙居比鄰而居,既維系家人間的親密聯結,又各自保有獨立的生活格調,于繁華廣州的都市語境里,構筑一處兼具家族溫度與審美個性的棲居之所。
[展開]
關注我們
分享到
微信

立即預約
在線咨詢
在線客服
公安部備案號 44010602004978號