方案展示
設計說明
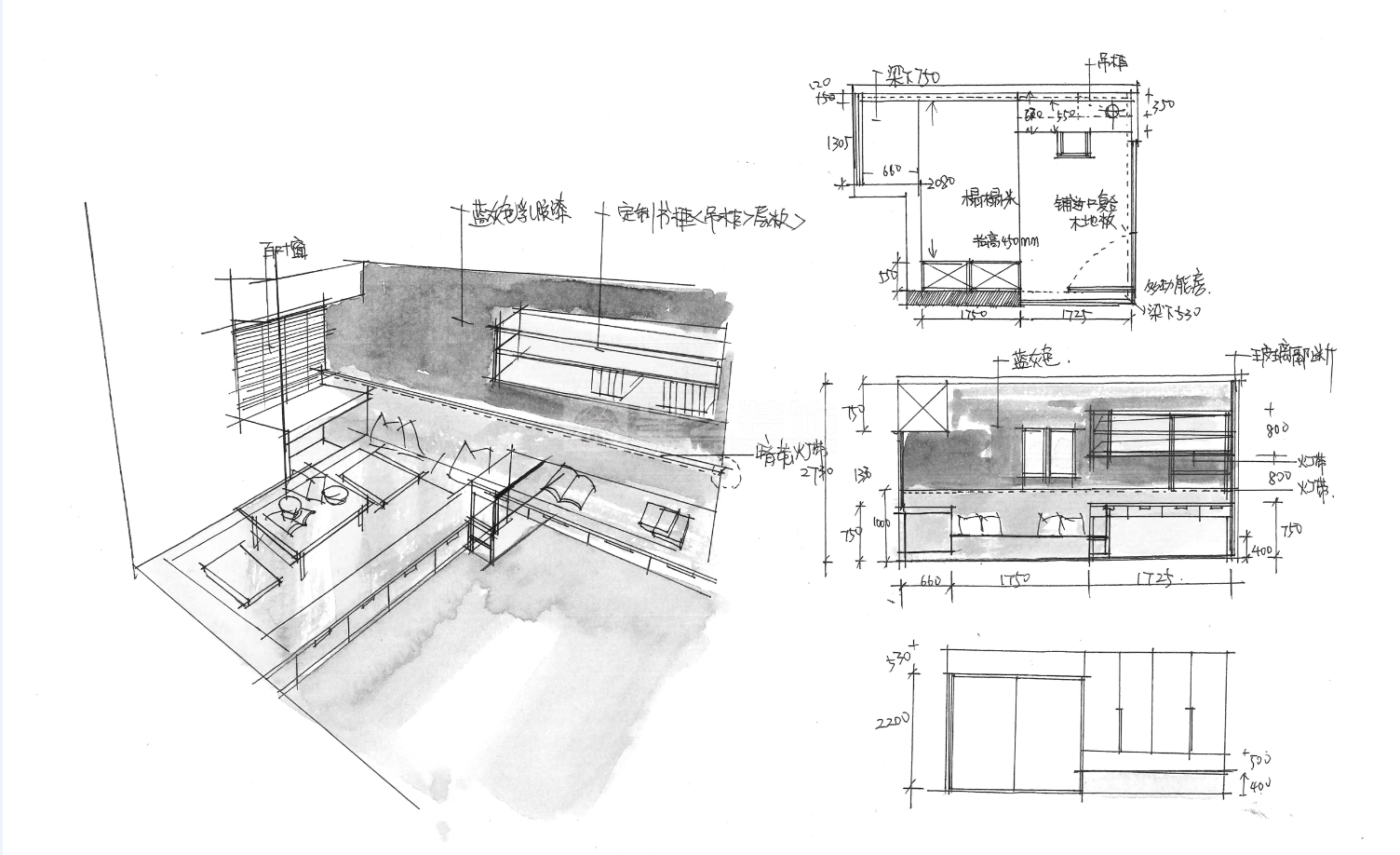
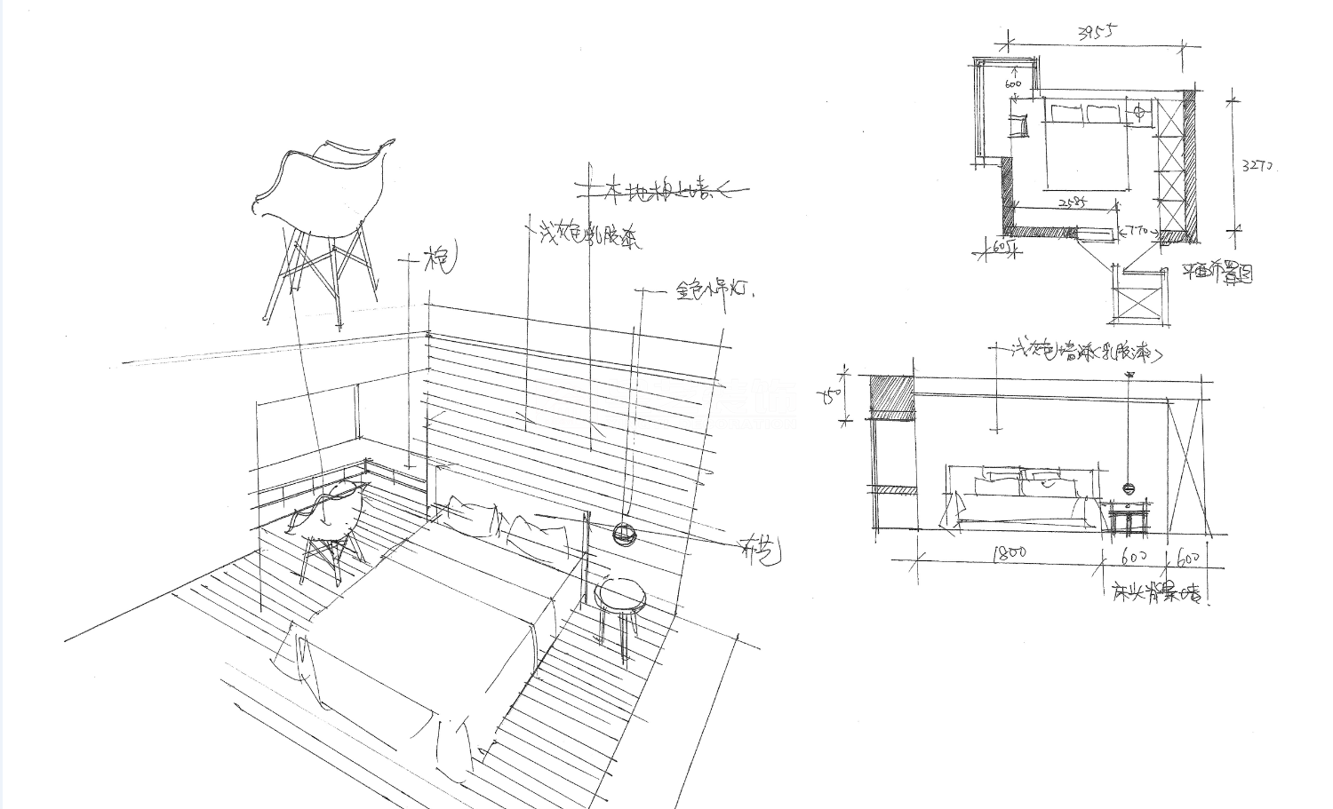
本案空間簡潔,色調以黑白灰為主,空間整體 給人一份寧靜,在大城市的嘈雜,回到家給居 住在這個空間會平復心靈,拿一份報紙一本書, 靜靜感覺時間的過往。色調上以淺色為主:白色、 灰色,水泥灰等。而材質方面以自然的元素, 如木 柔軟質樸的紗麻布制品等。現代風格 以簡約著稱,具有很濃的后現代主義特色,注 重流暢的線條設計,代表了一種時尚,回歸自 然,崇尚原木韻味,外加現代、實用、精美的 藝術設計風格,
[展開]-
星藝設計師的其它設計案例
-
極簡風格的其它設計案例
關注我們
分享到
微信

立即預約
在線咨詢
在線客服
公安部備案號 44010602004978號